Loading

The Cottages Abaco Inn Elbow Cay, Abaco, Bahamas

Historical Character & Context Study

Historical Context of Loyalist Settlements
Pattern & Detail Studies of Loyalist Settlements

Site Planning & Scale Studies

Planning Concepts

Bird’s Eye
View on arrival from water
View Southwest from approaching road
Schematic Study - Looking Southeast
View from The Abaco Inn

Building Typology Studies

Cottage A - Water Elevation Study
Cottage A - Elevation Study

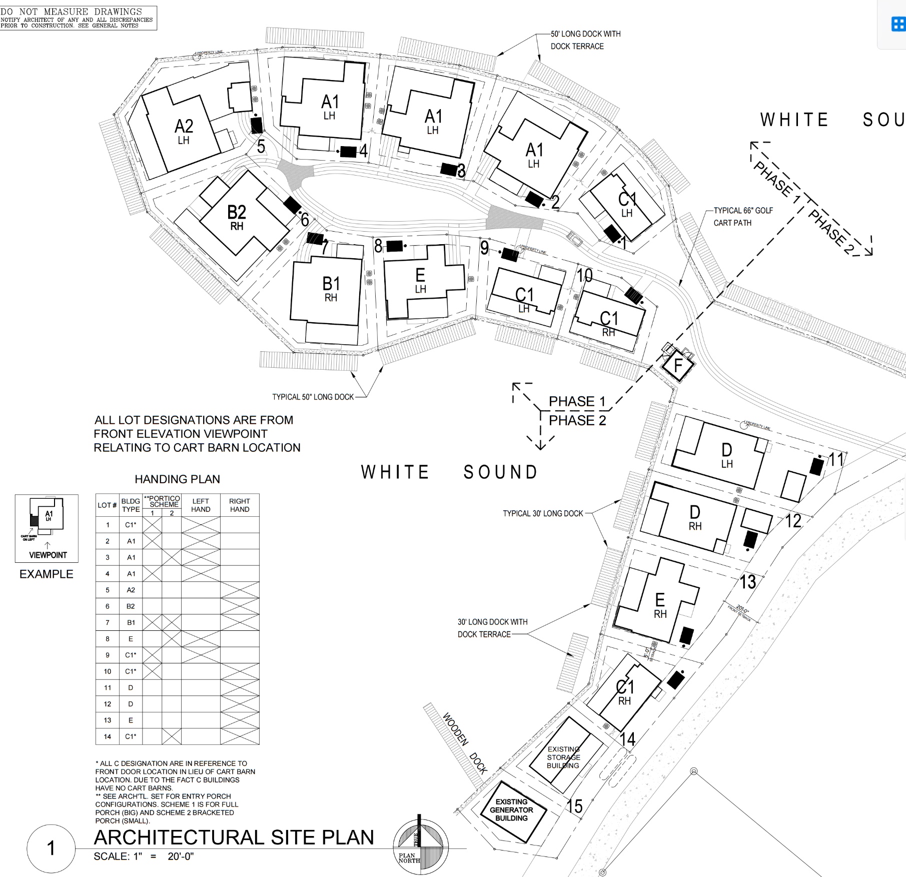
Site Plan

Architectural Character

View from Abaco Inn entry walk
View from road looking north to Dock
View looking west from street
View from Abaco Inn Dock to South

Elevation Studies

Streetscape and Courtyard
Evening Bird’s eye view
Completed cottages looking south east

Architectural Typologies

Floor Plans & Elevations

Lot 1,9,10,14 - C Typology

Entry Elevation
Sea Elevation
Side Elevation
Side Elevation
First Floor Elevation
Second Floor Elevation

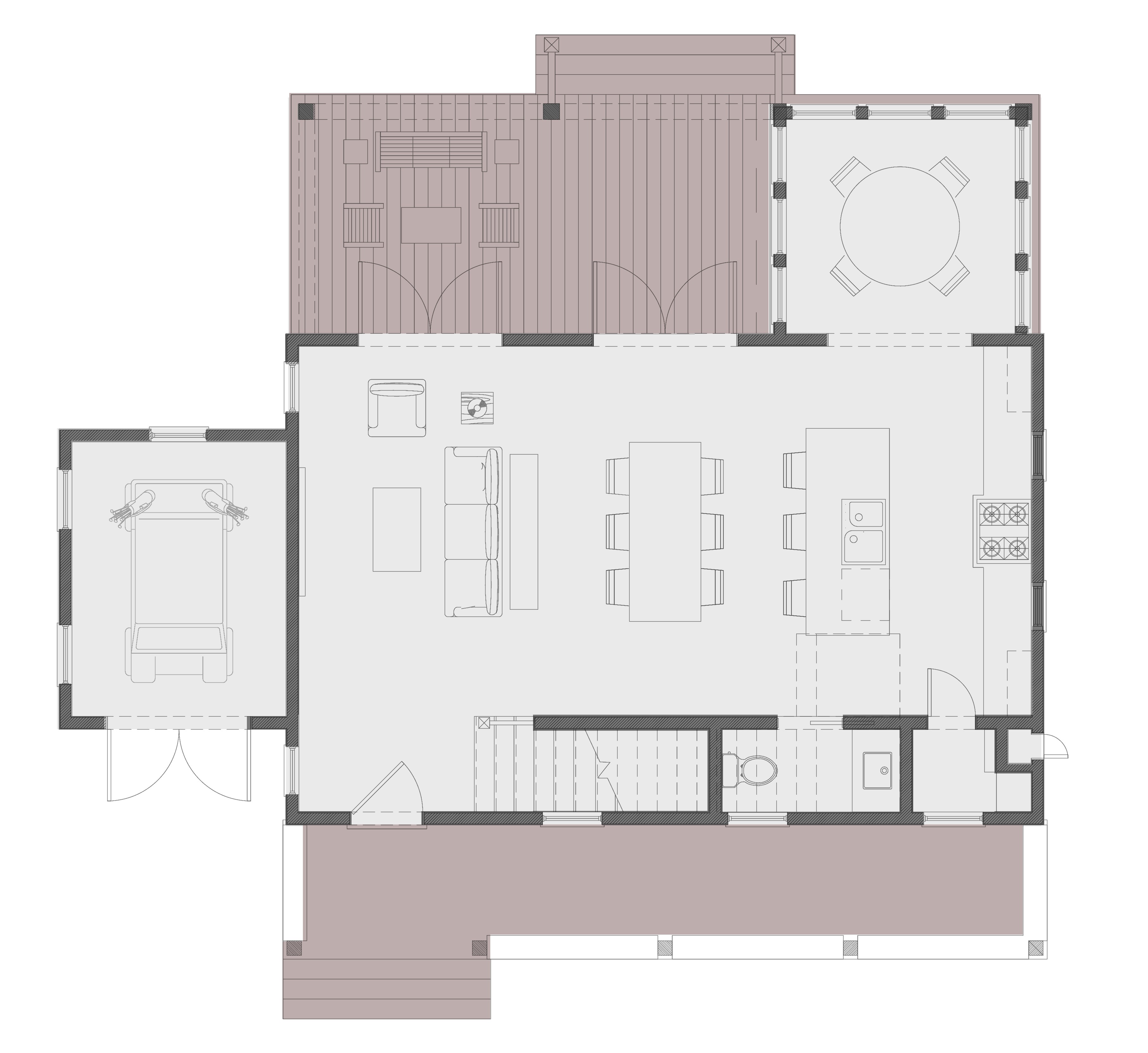
Lots 2,3,4 - A1 Typology

Court Elevation
Sea Elevation
Side Elevation
Side Elevation
Ground Floor Plan
Second Floor Plan

Lot 5 - A2 Typology

Court Elevation
Sea Elevation
Sea Elevation
South Side Elevation
Ground Floor Plan
Second Floor Plan

Lot 6 - B2 Typology

Court Elevation
South Sea Elevation
Side Elevation
Side Elevation
Ground Floor Plan
Second Floor Plan

Lot 7 - B1 Typology

Court Elevation
South Sea Elevation
Side Elevation
Side Elevation
Ground Floor
Second Floor
Optional Attic Loft

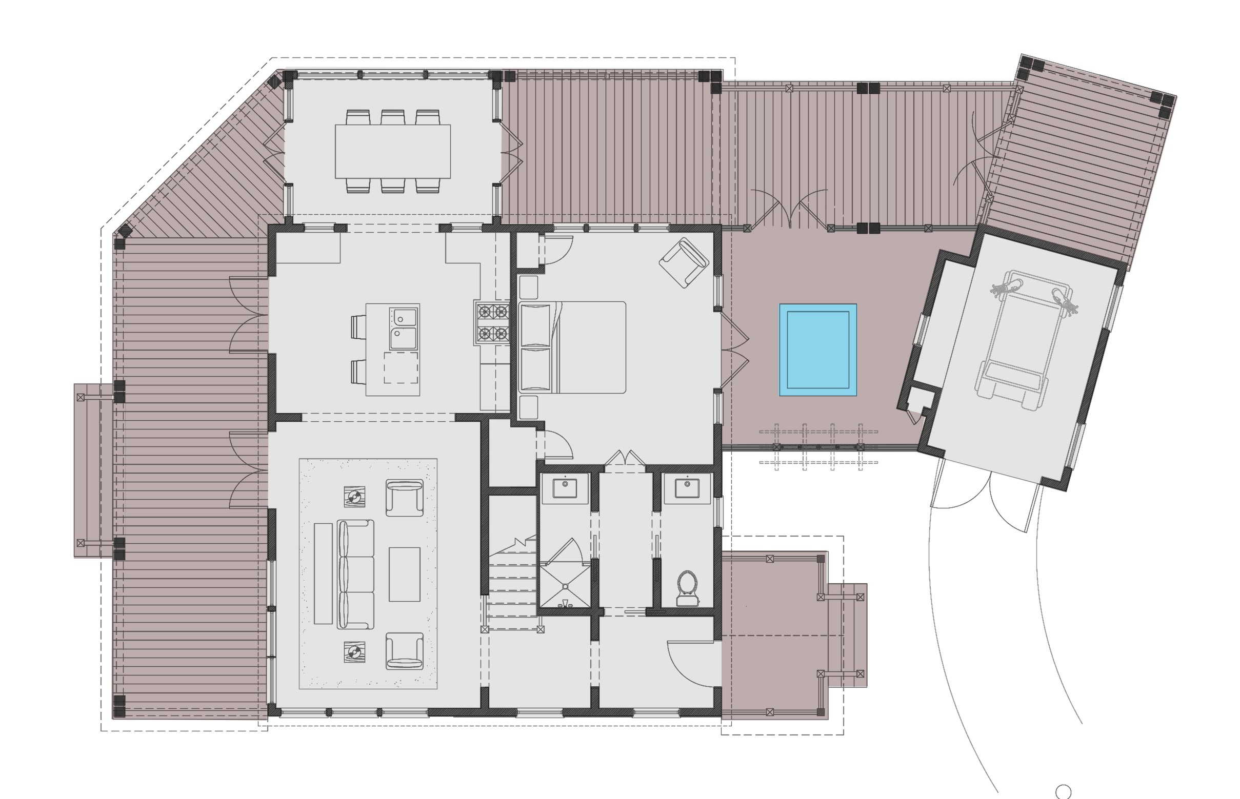
Lot 8&13 - E Typology

Court Elevation - North
Sea Elevation - South
Side Elevation - East
Side Elevation - North
Ground Floor
Second Floor

Lot 11 & 12 - D Typology

Street Elevation -East
Harbour Elevation - West
Side Elevation - South
Dock & Plaza Elevation - North
Ground Floor Plan
Second Floor Plan

Interiors Character Study