Loading

Oasis A new House for a Family Estate in the Abacos

The slopping Estate site spans from the Sea of Abaco on the west to the Atlantic Ocean on the east on the southern portion of Elbow Cay - Hope Town, Abaco. Cronk Duch Architecture designed the original Anglo Indies inspired house, “Oasis, positioned on ridge of the site, boat house and private marina in 2002. The design and construction of a new family house and pool house on the site is underway. The new House also sits on the ridge of the property to the south of the original structure with a garden court between.

Oasis
Site Plan
Property Site Boundaries
Additional property was added to the estate on the South to allow privacy for the new House.
Orientation of the new House
Site Plan - West

Existing house “Oasis” on the upper right with the new house on the lower left.

Schematic Floor Plan Concept

Schematic Concept Plan
Initial Schematic Diagram to best take advantage of the views on all sides and ridge line of the property
Program diagram with client underlay
Schematic 1st Floor Plan
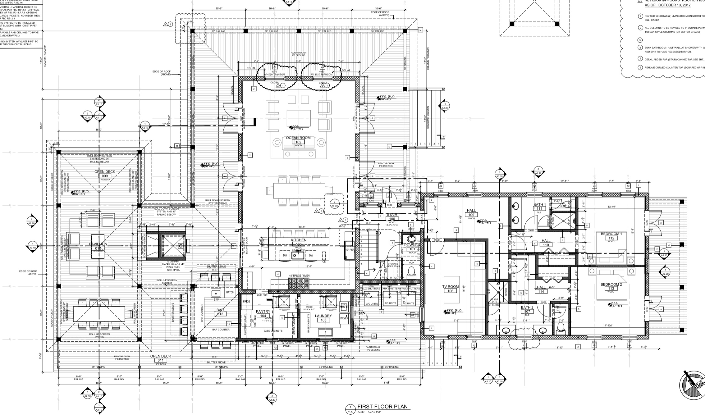
Final First Floor Plan

Site Context

Site Context- Views to the Sea of Abaco from the New House Site and Renderings of the concept from Street and Dock to understand building scale and massing in context of existing Residence
View North West from Pavilion
View South West to Tahiti Beach from Master Bedroom
View from Dock looking East with Oasis on the left and new House concept on the right
View from Entry drive looking west - New house on left with Existing on right
North / South Site Section and East Elevation
Site Context - Views of New House from Oasis to understand vista changes and overall impact of new residence
View from the Loogia of Oasis to South West
View from Oasis Pool
View from east end of Garden looking West - existing Oasis on the right with new residence on the left
View to the south from Oasis Pool stair (yellow siding option)
South elevation with existing House in background
View from Oasis cart court looking south west across the garden to new residence
Schematic Concept for New Residence
North Elevation
View looking South West - Corner Loggia and Living Pavillion with bar in background (yellow option)
View looking North East towards Oasis from Entry Loggia of new Residence
View looking North from Living Pavilion (yellow option)
North Entry Elevation
North Elevation - Construction progress
Loggia Railing Detail
View of north west from neighboring marina

Report Abuse

If you feel that this video content violates the Adobe Terms of Use, you may report this content by filling out this quick form.

To report a Copyright Violation, please follow Section 17 in the Terms of Use.